Внимание! Жалобы от неавторизированных пользователей системой не модерируются. Если вы хотите, чтобы по ним была проведена проверка, пройдите процедуру авторизации.
Чтобы отправить жалобу введите ваш телефон и нажмите Получить СМС код.
Номер жалобы:66704 Тип жалобы:Прочее Название объекта: Регион:Челябинская область Город:Челябинск Адрес:Челябинск, Якутская улица, 5 Описание жалобы:Снова свалка строительного мусора Статус:
Номер жалобы:66701 Тип жалобы:Прочее Название объекта: Регион:Москва Город:Москва Адрес:парк Удальцовские пруды Описание жалобы:Погибло 2 ели. Местоположение примерно такое, как на скрине. Ели эти на пятачке между оврагом с одной стороны и между ближайшими к этим елям пешеходными дорожками с остальных. Статус:
Номер жалобы:66699 Тип жалобы:Прочее Название объекта: Регион:Москва Город:Москва Адрес:парк Удальцовские пруды Описание жалобы:Между пешеходной дорожкой и мостом над оврагом погибла ель. Требуется заменить погибшее дерево. Местоположение очень близко к тому, что указано на скрине. Статус:
Номер жалобы:66698 Тип жалобы:Прочее Название объекта: Регион:Москва Город:Москва Адрес:парк Удальцовские пруды Описание жалобы:Погибла ель. За верхним из прудов неподалёку от гаражей. Место указано на скрине. Необходимо заменить погибшее дерево. Возможно, на дерево другой породы. Например, на сосну Статус:
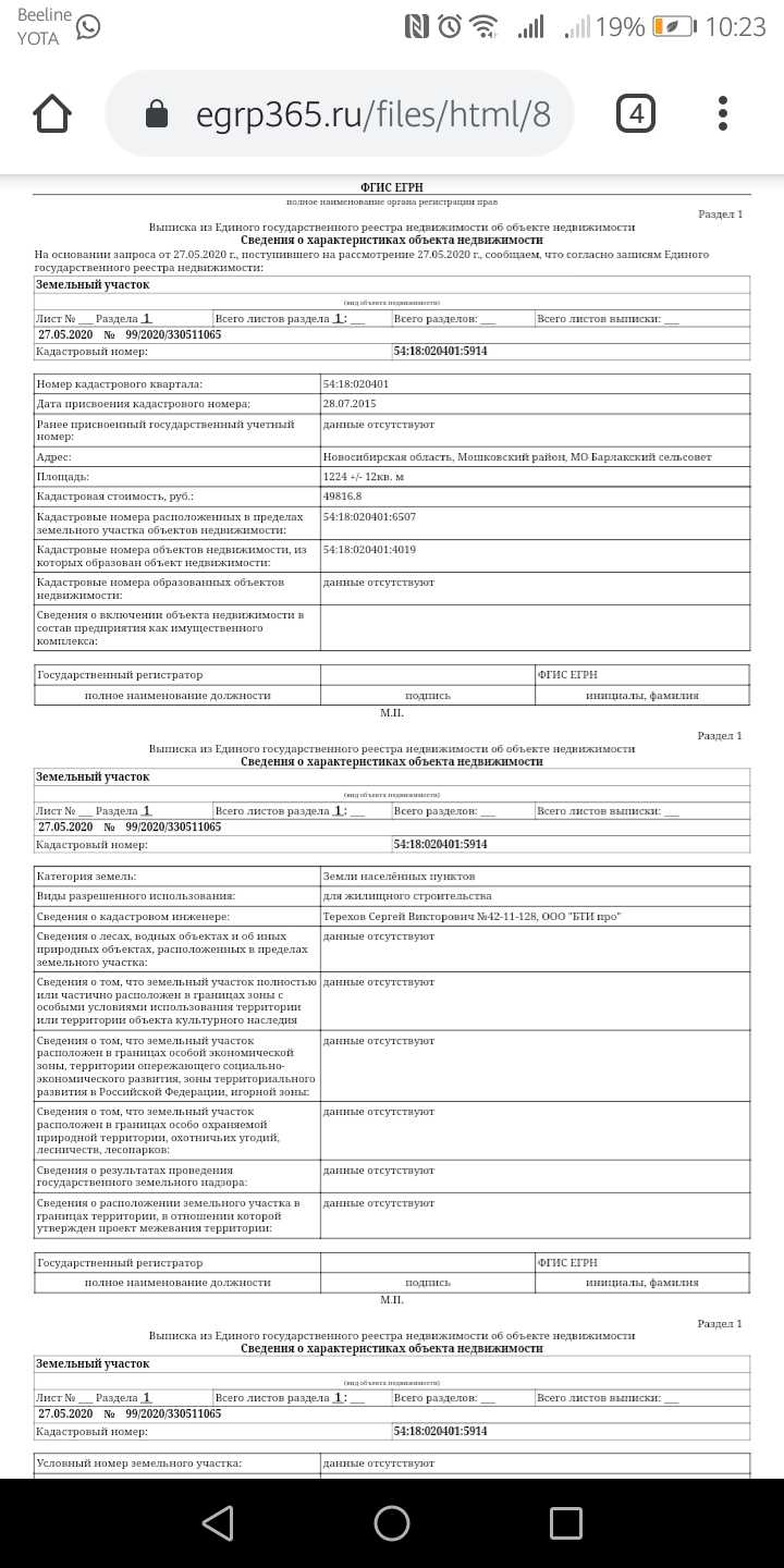
Номер жалобы:66685 Тип жалобы:Прочее Название объекта: Регион:Новосибирская область Город:посёлок Октябрьский Адрес:посёлок Октябрьский, Успешная улица, 7 Описание жалобы: Здравствуйте. Хотелось бы подать жалобу по поводу земель многоквартирных домов по улицам успешная. Дело в том что наши дома таунхаусы были сданы в эксплуатацию в 2016 году. И по выписке из егрн. Наша земля не является собственностью под домом. Кадастровый номер есть. Так же есть второй кадастровый номер земли, он общедолевой придомовой территории. Но и с ним не понятно ничего. Прилогаю вам документ выписка из егрн. Администрация по землям молчит наша местная. Статус:
Номер жалобы:66684 Тип жалобы:Прочее Название объекта: Регион:Ленинградская область Город:Кингисепп Адрес:Восточная улица, 6А Описание жалобы:Провал грунта. Статус:
Номер жалобы:66679 Тип жалобы:Прочее Название объекта: Регион:Новосибирская область Город:Новосибирск Адрес:улица Немировича-Данченко, 30/1 Описание жалобы:Сломалась лестница. Камни ступеней качаются. Освещения нет. Статус:
Номер жалобы:66667 Тип жалобы:Прочее Название объекта: Регион:Пермский край Город:Пермь Адрес:улица Кабельщиков, 21 Описание жалобы:Здравствуйте. На Гайве за 37 школой и лагерем "сосновый бор" в лесополосе наркоманы ищут закладки. Большинство деревьев вдоль экотропы подрыты. Написала в "управляем вместе", пока ответ готовится. Статус:
Номер жалобы:66658 Тип жалобы:Прочее Название объекта: Регион:Челябинская область Город:Златоуст Адрес:Златоуст, улица Шишкина, 13 Описание жалобы:Председатель потребительского кооператива "Урожай 2" ( ПК"Урожай 2") Осадчий Сергей Васильевич незаконно принуждает собственников, купивших боксы у предыдущих владельцев в ПК "Урожай 2", оплачивать вступительные взносы в размере 1000 рублей. Так же принуждает писать заявление о вступлении в данный кооператив, что так же является незаконным действием. У данного кооператива есть устав, который находится у председателя Осадчего С. В.,в котором указано, согласно п. 5.1.4. что : "В случае отчуждения членом кооператива своего бокса ,приобретатель последнего автоматически становится членом данного кооператива после возникновения у него права собственности на помещение(после гос. регистрации прав на недвижимость)".Вопреки данному пункту, угрожая отключить собственникам электроэнергию в боксе и сменить замки в рядах,не выдавая при этом ключи,тем самым сделав невозможным пользоваться по назначению своим боксом(хранение овощей), он вымогает деньги с собственников.На вопрос "куда будет потрачен этот незаконный доход?" никаких ответов не дает. Считаем,что таким образом председатель кооператива Осадчий С. В. незаконно обогащается за счет собственников, вновь купивших боксы в данном ПК. Отчеты на что были потрачены членские и вступительные взносы не показывает. Просим направить жалобу в прокуратуру и налоговую инспекцию г. Златоуста с просьбой провести проверку на выявление нарушений закона председателем кооператива Осадчим С. В. в отношении собственников ПК "Урожай 2", находящегося по адресу г. Златоуст, ул. Шишкина, 13. Статус:
Номер жалобы:66655 Тип жалобы:Прочее Название объекта: Регион:Ленинградская область Город:Кингисепп Адрес:Вокзальная улица Описание жалобы:Напротив веды. Статус: